Фото дома по проекту К-303- Янтарь
Описание
Фото дома и элементов дома по проекту К-303-Янтарь
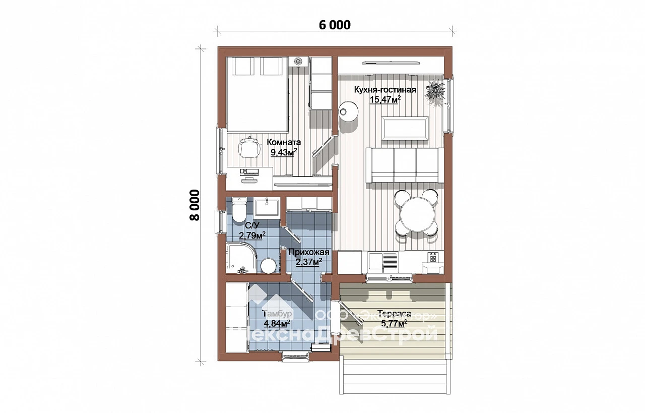
6х8 м
размер
48 м2
общая площадь
каркас
технология
2
комнат
1
cанузлов
1 этаж
этажность
Возможно изменение данного проекта
Планы
Ещё дома
Фото дома по проекту К-271 Мария
148 м2
площадь
7,5х11,5 м
размер
1.5 этажа
этажность
Смотреть
5 фото
Фото дома по проекту К-267 Капучино
147 м2
площадь
7,5х11,5 м
размер
1.5 этажа
этажность
Смотреть
7 фото