Наш основной офис:
г. Череповец,
ул. Ленина, д. 80, оф. 112
Работаем ПН-ПТ: 10:00 — 18:00
+7 (921) 250-00-27
Наш основной офис:
г. Череповец, ул. Ленина, д. 80, оф. 112

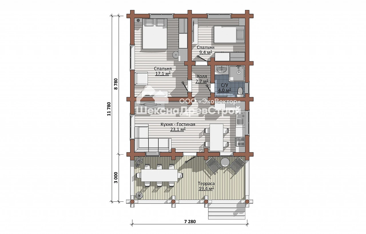
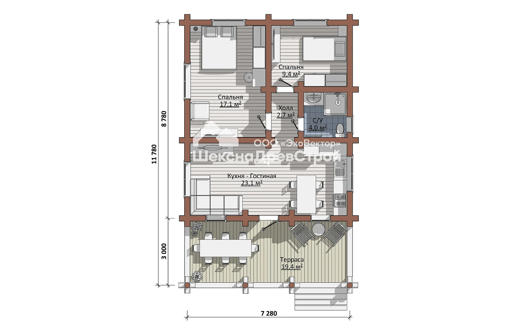
Дом из оцилиндрованного бревна Бр-23

Описание

Бревенчатые стены нашего дома, пропитанные солнцем , шепчут истории леса, откуда они родом. Каждое бревно –  хранит память о прошедших грозах и тихих рассветах.

Терраса, словно раскрытые объятия, встречает гостей, приглашая отдохнуть от суеты мира. Большие окна – это глаза дома, смотрящие в душу природы, вбирающие в себя краски заката и серебро лунного света. Они – как порталы в другой мир, где царит гармония и покой.

Внутри дома, кажется, время замедляет свой бег. Аромат дерева, смешанный с запахом трав и цветов, создает атмосферу умиротворения. Свет, проникающий сквозь окна, играет на стенах, рисуя причудливые узоры.

Этот дом – не просто строение, это живая душа, воплощение мечты о тихом пристанище, где можно укрыться от бурь жизни и найти гармонию с собой и миром. Это место, где время останавливается, а сердце наполняется теплом и любовью.

7,28х11,78
размер
75
общая площадь
оцилиндрованное бревно
технология
3
комнат
1
cанузлов
1 этаж
этажность
Цена от
3 395 000 ₽
Возможно изменение данного проекта
Звоните, пишите:

Планы

Виды дома

Что входит в стоимость

  • Проектная документация
    Проект данного дома АР и КР (Архитектурный раздел и Конструктивный раздел). Проект инженерных систем выполняется дополнительно.
  • Фундамент
    Забивные ЖБ сваи сечением 150х150х3000 с доставкой и установкой. Стоимость и сечение свай фундамента может быть скорректирована в зависимости от участка и удаленности объекта.
  • Стеновой комплект
    Стеновой комплект из бруса согласно проекта с установкой. Изготовлен в заводских условиях если дом из клееного бруса или массив в чашу. При строительстве дома в теплый угол (без выноса) поставляется комплект 6-ти метрового материала и на участке Заказчика собирается в сруб.
  • Перекрытие
    Обвязочный брус и балки перекрытий согласно проекта с установкой.
  • Кровля
    Стропильная конструкция согласно проекта-стропильные ноги, контр. обрешетка, обрешетка кровли, кровельная пленка, металлочерепица Монтеррей 0,5мм., конек кровельный, саморезы кровельные с установкой.
  • Окна, двери
    Не входят в данный этап.
  • Наши преимущества
    Все работники компании имеют большой стаж работы, снабжены всем инструментом, не требуется предоставлять жилье на период строительства –все бригады снабжены перевозными бытовками. Договор, гарантии, аккредитованы в ведущих банках страны.

Ещё проекты

Дом из оцилиндрованного бревна Бр-24 - Сказка в Заозерье
Дом из оцилиндрованного бревна Бр-24 - Сказка в Заозерье
Дом из оцилиндрованного бревна Бр-24 - Сказка в Заозерье
Дом из оцилиндрованного бревна Бр-24 - Сказка в Заозерье
Дом из оцилиндрованного бревна Бр-24 - Сказка в Заозерье

Дом из оцилиндрованного бревна Бр-24 - Сказка в Заозерье

оцилиндрованное бревно
Тип дома
90 м2
Площадь
10,5х10,5 м
Размеры
от 4 665 000 ₽
Есть вопросы?
Оставьте свои контакты, и мы свяжемся с вами, чтобы ответить на вопросы и обсудить детали вашего будущего проекта.